Condominio Circus Goodlife Apartment
Alleen voorbeeld – bekijk alle hotelfoto's
Zie alle 21 foto's
Hotel op de kaart tonen
Condominio Circus Goodlife Apartment
Deze 2-slaapkamer Condominio Circus Breuil-Cervinia villa bevindt zich op circa 1 km van Skilift van Campetto en nodigt gasten uit om attracties in de omgeving te verkennen.
Het vakantiehuis is gesitueerd in de onmiddellijke nabijheid van Gondel van Breuil-Cervinia, terwijl BUS Terminal busstation op loopafstand van ongeveer 5 minuten hiervandaan is.
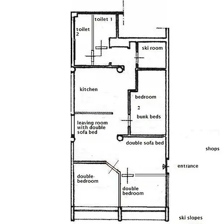
Condominio Circus villa beschikt over een badkamer met een bidet, een apart toilet en een douche.
De accommodatie biedt zelfvoorzienende voorzieningen, zoals een complete keuken en een eetgedeelte voor het gemak van de gasten. U kunt ook gebruikmaken van koffie- en theevoorzieningen, een koelkast, een broodrooster om uw eigen maaltijd te bereiden. Even 2 met de Mediterrane keuken ligt op 1 km van de 2-badkamer villa. Reizigers kunnen gemakkelijk de luchthaven Turijn Caselle bereiken, die op 125 km van deze villa ligt. Ontspanningsopties bieden een solarium.
Voorzieningen
Hoofdvoorzieningen
- Wi-Fi
- Gratis parkeren
- Sportactiviteiten
- Spa en ontspanning
- Eten op locatie
- Kindvriendelijk
- Rolstoeltoegankelijk
- Huisdieren
Faciliteiten
- Roken is niet toegestaan
- WiFi
- Gratis parkeren
- Off-site parkeerplaats
- Kluisje
- Huisdieren toegestaan
- Kamers/faciliteiten voor mindervaliden
- Rolstoeltoegankelijk
- Beveiliging
- Voordeur skiën
- Skiopslagkamer
- ATM/Geldautomaat
- Kapper
- Verkoopautomaten
- Brandblussers
- Elektrische waterkoker
- Keukengerei
- Restaurant
- Snackbar
- Bar/ lounge
- Speciale dieetmenu's
- Zonneterras
- Tuin
- Spa en wellnesscentrum
- Solarium
- Rugmassage
- Hoofdmassage
- Complete lichaamsmassage
- Voetmassage
- Skischool
- Wandelen
- Paardrijden
- Tennisveld
- Golfbaan
- Visserij
- Ski-uitrusting verhuur
- Wasserij
- Skipas automaat
- Winkels/ Commerciële diensten
- Verwarming
- Zithoek
- Koffie- en theefaciliteiten
- Eettafel
- Flat-screen TV
- Kinderbuffet
- Parketvloer
Beleid
- Extra bedden
- Geen extra bedden zijn beschikbaar in een kamer.
Kaart
Locale bezienswaardigheiden
Bezienswaardigheden
- Kabelbaan Plateau Rosà (500 m)
- Cable Car Breuil - Plan Maison (750 m)
Luchthavens
- Luchthaven Turijn Caselle (121 km)
Treinstations
- Riffelberg (12 km)
Beoordelingen
100% Geverifieerde Beoordelingen
Veelgestelde vragen
- ❓Hoe ver is het vliegveld van Condominio Circus villa?De afstand tussen de luchthaven Turijn Caselle en Condominio Circus villa is ongeveer 125 km.
- ❓Hoeveel kost het huren van Condominio Circus villa?Een overnachting in Condominio Circus villa begint bij €630.
- ❓Is er een keuken aanwezig in het vakantiehuis?Zeker, het vakantiehuis biedt een complete keuken met koffie- en theevoorzieningen, een koelkast, een broodrooster.
- ❓Kan ik mijn huisdier meenemen naar de villa?Ja, huisdieren kunnen verblijven in de villa.
- ❓Biedt Condominio Circus villa spafaciliteiten?Gasten van Condominio Circus villa kunnen genieten van hoofdmassage en rugmassage, evenals van een solarium.
- ❓Zijn er skifaciliteiten beschikbaar in Condominio Circus villa?Ja, een skischool, een skiopslag en een skipas bij Condominio Circus villa zijn perfect voor gasten die van skiën houden.